不動産を買う

戸建て

恩納村安富祖戸建 ( 恩納村字安富祖 )

価格

29,800万円

住所

恩納村字安富祖恩納村字安富祖

土地面積

338.45㎡(102.38坪)

建物面積

373.28㎡(112.91坪)

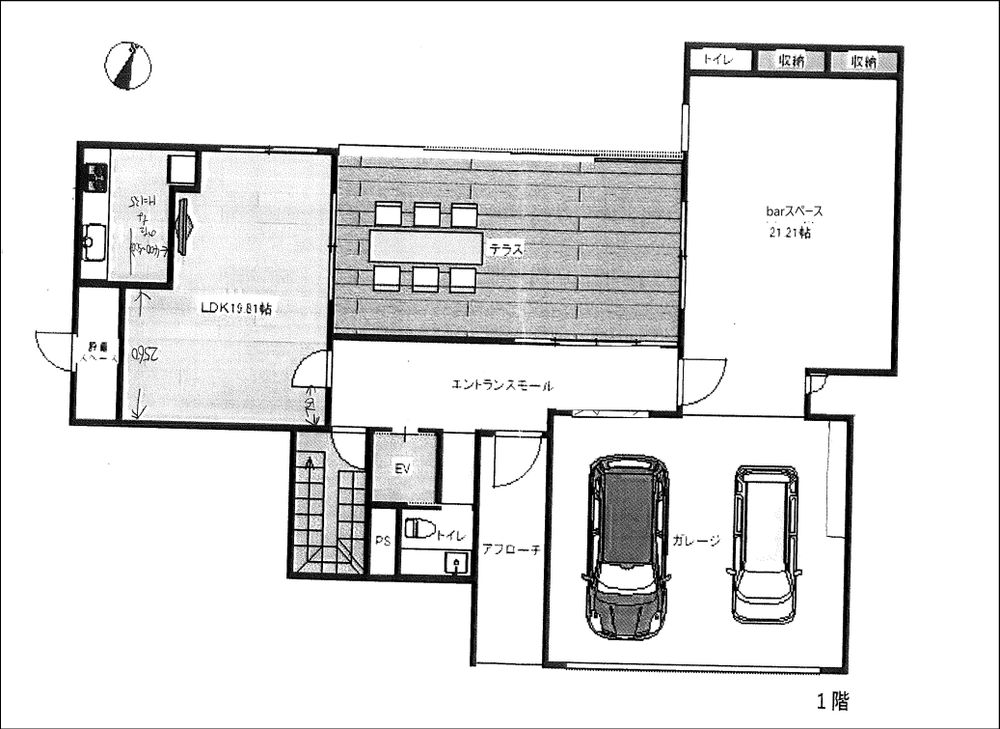
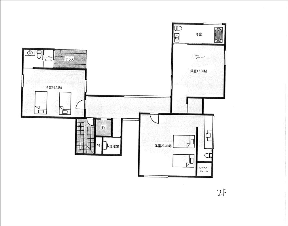
間取り

お問い合わせ

交通

那覇空港より車で60分 ※沖縄自動車道利用

建築構造

RC造陸屋根4階建

建築年月

2008年4月(築17年)

都市計画

都市計画区域外

用途地域

無指定

建ぺい率

50%

容積率

100%

現況

居宅

固定資産税

343,104円(令和7年度税額参照)

土地権利

所有権

駐車場

ビルトインガレージ2台、外3台

担当者より

恩納村集落地域。
いま、この地に新たな建築は許されません。

恩納村は景観条例による建築・開発の制限も厳しく、
「海を望む立地 × 日常利便性(コンビニまで徒歩3分)」が両立しているのは本当に希少。
ウミガメが産卵に訪れる、ほぼプライベートビーチのような海まで徒歩2分の好立地。
エレベーター付き4階建、ビルトインガレージ完備。
野外ジャグジーやBarスペースが、海辺の暮らしに上質な余白を添えます。
時が経つほどに価値を増す、唯一無二のビーチフロント邸宅です。

POINT

<POINT>

・旅館業→✖  民泊→〇

・外壁改修、室内ハウスクリーニング済

・集落地域では現在建築不可能な4階建

 

<内見条件>

・自己資金:売価の20%~30%ご準備ある方

・ご融資ご利用の場合、事前仮審査がOK、又は融資の目途が経っている方

・内覧は、事前に日程調整後ご予約が必要です(当日対応は致し兼ねます)

 

ローソン恩納安富店近く、物件概要書のご請求は下記へお電話下さい。

お問合せ先:098ー876ー7380

物件のお問い合わせ

物件のお問い合わせは、下記フォームからお願いいたします。

いただいたお客さまの個人情報につきましては、厳重に取扱い、ご質問・お問合わせへの回答時にのみ使用します。 詳しくは弊社のプライバシーポリシーをご覧ください。

物件見学希望の方はお電話で

Tel. 098-876-7380

営業時間 AM10:00~PM6:00(土のみPM5:00)※日・祝休 (電話転送サービス)

お名前 必須
メールアドレス 必須
必須
性別
お問い合わせ物件
お電話番号 必須
- -
FAX番号
- -
資料請求方法
郵便番号
-
都道府県
市区町村番地
マンション・ビル名
お問い合わせ内容 ※文章に絵文字や特殊な記号は使用しないようお願いいたします。
エラーとなり受信ができません。